Le Petit Marais
Le Petit Marais ist ein kleines Stück Paris in Zürich. Hochwertige Kreationen (Patisserie, tourierte Gebäcke, Pain au Chocolat…) werden liebevoll und nach originalen Rezepten produziert und an diverse Kaffees (unter anderem Kunsthaus Bar, Beetnut oder Helvti Café) geliefert. Nun findet "Le Petit Marais" in Zürich-Altstetten die eigene Produktion mit integriertem Café einen idealen Ort der Fusion von Geniessen und Kreieren. "
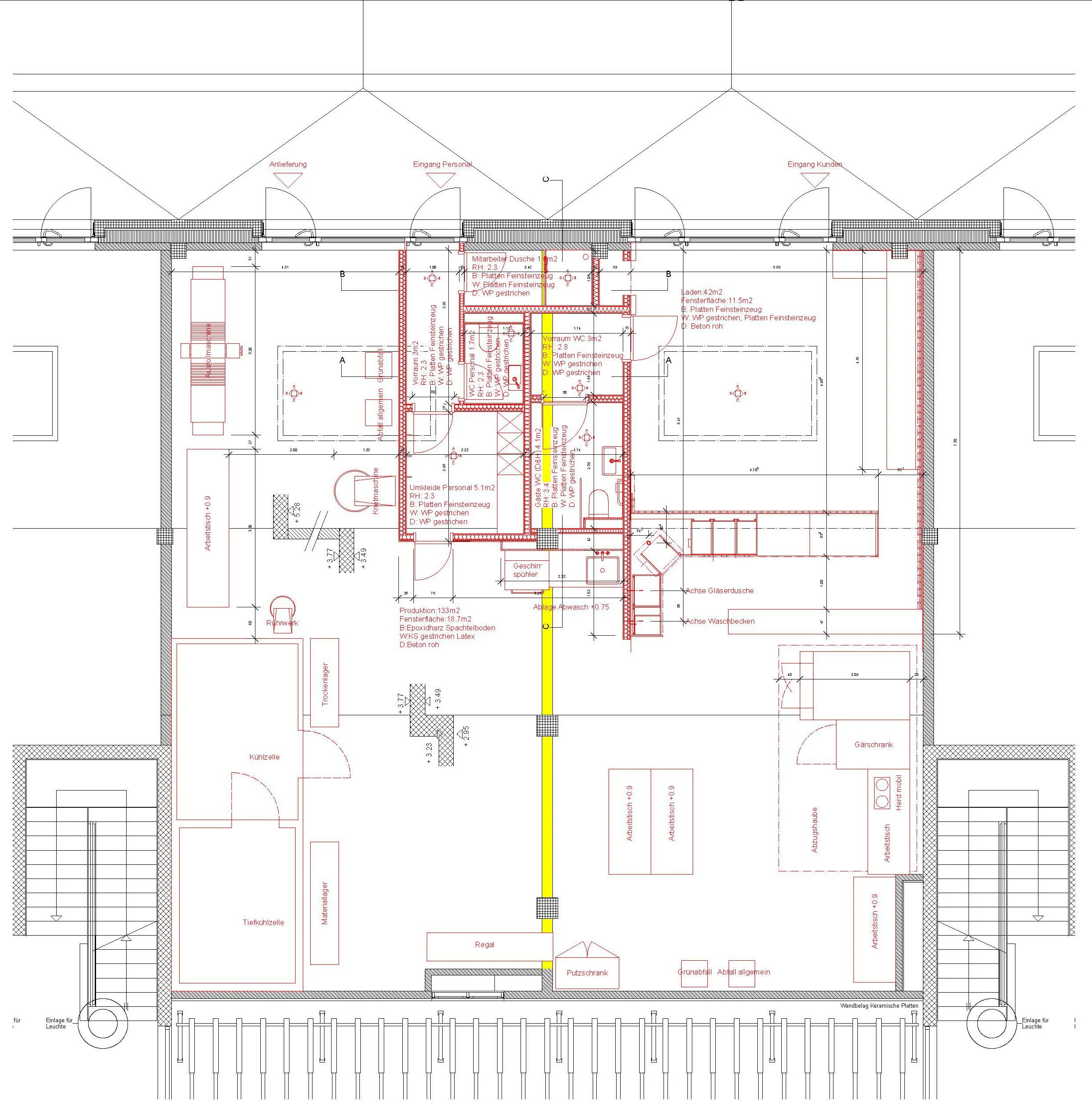
Das neue Ladenlokal besticht durch sein Oberlicht, grossflächige Fenster und seine luftige Raumhöhe. Eine tolle Voraussetzung, als Innenarchitekt hatte ich aber zugleich die anspruchsvolle Aufgabe, dem Raum eine gemütliche Atmosphäre zu verleihen ohne dabei den industriellen Touch zu verwässern.
Das Resultat: Der hohe, helle und funktional anmutende Raum vereint Produktionsstätte mit der Gemütlichkeit eines Kaffeehauses, Pariser Flair - in der Umgebung von Zürich Altstetten ohne aufgesetzt zu wirken.
Ausführung: 2022
Projektart: Mieterausbau, Gastro
Design, Planung & Bauleitung: MF Innenarchitektur
Fotografie: Aytac Pektemir

